+7 (920) 391-38-75 +7 (963) 218-67-77
Email: info@stroy-ka44.ru
Кострома, Кузнецкая улица 18Б, офис 10
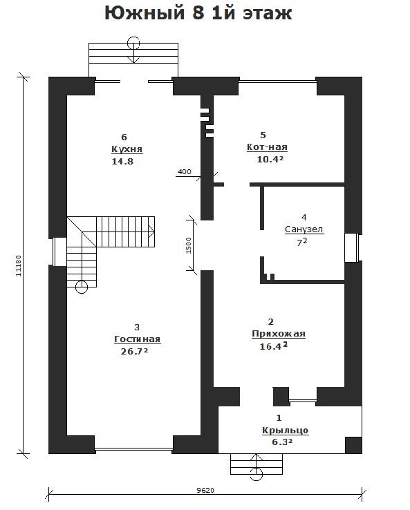
Общая площадь 157,1 м.кв
Размеры 9,62х11,18
Что входит в стоимость:
Фундамент; монолитная железобетонная лента.
Высота потолков 1й и 2й этаж -2700 мм.
Перекрытие первого этажа плиты жби;
Перекрытия второго этажа брус 100х200 мм..
Наружные стены 1 этажа - газосиликатный блок 400 мм. + облицовочный керамический кирпич.
Внутренние несущие стены газосиликатный блок 400мм..
Перегородки газосиликатный блок 100 мм..
Кровля гибкая черепица.
В стоимость входит; работа, материалы и доставка материалов на объект.
Понравился проект? Поделись с друзьями: