+7 (920) 391-38-75 +7 (963) 218-67-77
Email: info@stroy-ka44.ru
Кострома, Кузнецкая улица 18Б, офис 10
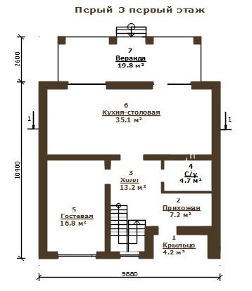
Общая площадь 171.5 м.кв
Размеры 9.88х13
Что входит в стоимость:
Фундамент ленточный из монолитного армированного бетона (в т.ч. и под внутренними стенами)
Высота потолков 1й и 2й этаж -2600 мм.
Перекрытие фундамента и первого этажа плиты жби;
Наружные стены 1 этажа - газосиликатный блок 300 мм, + облицовочный керамический кирпич.
Внутренние несущие стены газосиликатный блок 300 мм.
Перегородки газосиликатный блок 100 мм.
Кровля металлочерепица.
Понравился проект? Поделись с друзьями: